top of page

MAKE OUR HOUSE
YOUR HOME

Scroll Down
Lambeth Country
Presenting
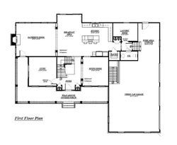
The Lambeth Country has approximately 3,225 square feet of living space and is currently offered through our "On Your Lot" program.
3,225 sf of Living Space
4 to 5 Bedrooms
3.5+ Bathrooms
3 Car Garage
Lambeth Details
Exterior
![]() | ![]() | ![]() |
|---|---|---|
![]() |
Interior
![]() | ![]() | ![]() |
|---|---|---|
![]() | ![]() | ![]() |
![]() | ![]() | ![]() |
![]() | ![]() | ![]() |
![]() |
Lambeth Country Photos
Lambeth Photos
Lambeth Country Floorplan
Lambeth Floorplan
![]() | ![]() |
|---|
bottom of page




















